Skip to main content

Hillyer Art Library Closed Monday, May 18

Hillyer will be closed for maintenance Monday, May 18 and will reopen Tuesday, May 19. See Libraries’ Hours for up-to-date information.

Neilson Library Construction Update, June 13, 2019

New Neilson

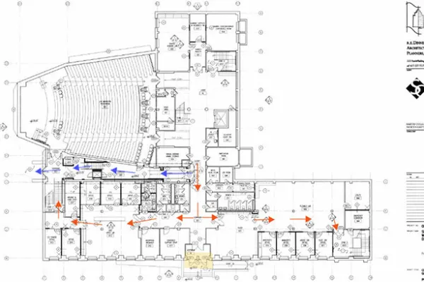
Floor plan of Wright Hall showing exit paths

Click here to see a plan of the lower level of Wright Hall showing regular travel out through the back doors towards the Lanning Fountain in blue arrows and red arrows denoting alternate egress paths to be used for emergency egress only. Additional signs will be posted in Wright Hall once the terrace doors are secured and demolition begins.

Published June 13, 2019

On Friday, June 14, there will be extra truck traffic through John M. Greene Gate as the contractor pours the level 2 concrete deck at Neilson. There will be a concrete pumper truck for part of the day on the south side of Hatfield Hall with concrete trucks regularly making deliveries. Due to the curing time required for the concrete, the operation will begin early morning with all concrete placed by mid-day. Finishing of the concrete will keep crews on site through the early evening and back again on Saturday morning to apply curing agent.

Also, due to scheduling issues, the demolition of the Wright Hall back stair out to the terrace will not begin until Tuesday, June 18. There will be electricians in Wright Hall Thursday, June 13, to rework the exit signs for the revised emergency egress out of Wright. For those using Wright Hall as a route around the construction site, you will need to use the back entry near the Lanning Fountain as the terrace doors will be closed off.

Contact

Charlie Conant
Project Manager
Facilities Management
413-585-2424
cconant@smith.edu

Peter Gagnon
Capital Construction Director
Facilities Management
413-585-2406
pgagnon@smith.edu